14548 SCHWIELOWSEE-CAPUTH, SCHMERBERGER WEG
___________________

NEUZUGANG
Stilvolles, gehoben und barrierefreie ausgestattetes EFH: 6 Zimmer, Lift, Kamin, Wintergarten und Solar!
Bei diesem Angebot handelt es sich um ein großzügiges Einfamilienhaus in ruhiger und schöner Lage in Schwielowsee - Caputh.
Das Haus wurde 1996 in Massivbauweise errichtet und 2002 durch Umbau der Garage und Anbau eines Wintergartens erweitert.
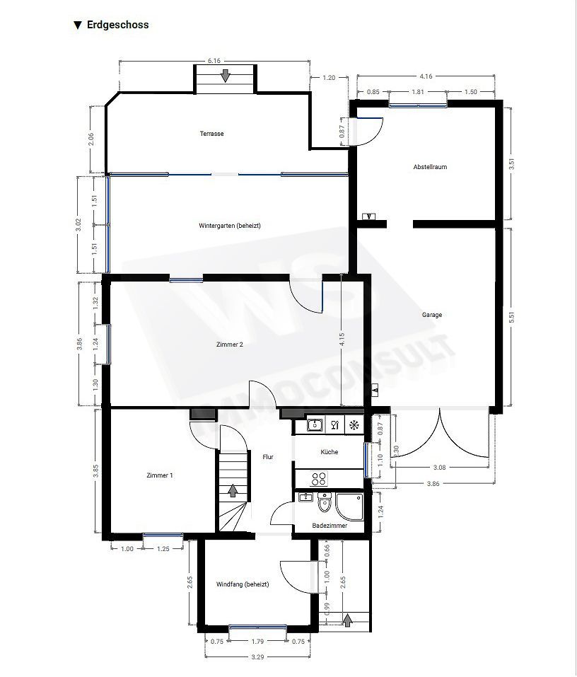
Es verfügt über geräumige 6 Zimmer + Nebenräume als Ankleide oder Hobby-/Abstellräume.
DIE IMMOBILIE
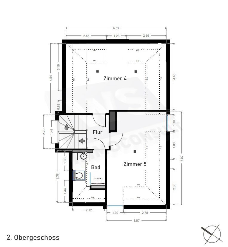
Von Beginn an wurde das Haus barrierefrei gestaltet und verfügt über breite Türen, eine breite Treppe und ein stufenloses und schwellenarmes Erdgeschoss. Das Obergeschoss ist mit einem Treppenlift bequem erreichbar.
Es ist modern mit einer Gas-Brennwerttherme aus 2020 ausgestattet und verfügt über eine Solaranlage mit 5,46 kWp aus dem Jahre 2011.
Das Objekt wurde stehts auf Stand gehalten und gepflegt und auch mit einer Alarmanlage, elektrischen Rollläden rundum und großen Velux-Fenstern im Dach mit elektrischen Außenrollläden ausgestattet.
Eine geräumige, offene Küche mit Markengeräten und Echtgranitplatte runden das hochwertige Erscheinungsbild ab.
Ein Kamin sorgt im Wohnbereich für schöne Atmosphäre und die Terrasse wurde mit elektrischem Sonnenschutz/Überdach ausgestattet.
Der Garten ist pflegeleicht und schön angelegt, auch ein Brunnen für die Gartenbewässerung ist vorhanden.
Für die Fahrzeuge ist ein höhrerer Design-Glascarport mit 2,50 m Höhe vorhanden sowie ein weiterer Carport für 2 PKW + Schuppen.
DETAILS
Wohnfläche ca.: 232 m²
Grundstücksfläche ca.: 1.028 m²
Nutzfläche ca.: 250 m²
Typ: Freistehendes Einfamilienhaus
Etagen: 2
Zimmer: 6
Anzahl Garagen: 3 Carports
Bezugsfrei: ab sofort
Kaufpreis: 935.000 Euro
Provision für Käufer: 7,14 % inkl. Mwst fällig nach Notar durch Rechnungstellung von WS Immoconsult Wicke
Infos gemäß GEG - § 87
Baujahr: 1996
Objektzustand: Gepflegt
Letzte Modernisierung/Sanierung: 2020
Qualität der Ausstattung: gehoben
Heizungsart: Zentralheizung
Wesentliche Energieträger: Gas
Energieausweis: liegt vor
Energieausweistyp: Verbrauchsausweis
Endenergiebedarf: 120,5 kWh/(m²*a)
Baujahr laut Energieausweis: 1996
Provision für Käufer: 3,5 % nach Notar inkl. MwSt
LAGE
Willkommen im idyllischen Caputh, einem beliebten Ortsteil der Gemeinde Schwielowsee, der durch seine malerische Lage an den Ufern der Havel und des namensgebenden Schwielowsees besticht. Das hier vorgestellte Einfamilienhaus liegt grün eingebettet in einer ruhigen Wohngegend mit hervorragender Anbindung an die nahegelegenen Städte Potsdam und Berlin.
In unmittelbarer Nähe finden Sie bequem die Dinge des täglichen Bedarfs (REWE, eine Landbäckerei, ein Fleischer, Apotheke, Arztpraxen, Briefkasten, Fitnessstudio).
Im direkten Umfeld befinden sich außerdem eine Grundschule, mehrere Kitas und ein Familienzentrum. Mehrere gemütliche Restaurants, Cafés, Eisdielen und eine sehr gute Landbäckerei locken nicht nur zahlreiche Tagestouristen in die hübsche Gemeinde am See. Neben dem Schloss Caputh, dem Einsteinhaus, mehreren Kunst-Ateliers und dem idyllischen Strandbad bietet die Gegend zahlreiche weitere kulturelle und freizeitliche Angebote. So kann man hier hervorragend wandernd und fahrradfahrend die Nachbarschaft erkunden oder Wassersport wie Segeln oder Kanufahren für sich entdecken.
Nahe gelegen gibt es verschiedene Buslinien und die Bahnlinien RB23 und RB33 (Bahnhof Caputh-Schwielowsee), die Sie mit regionalen und überregionalen Zielen verbinden.
Die Autobahnauffahrt Ferch ist nur wenige Kilometer entfernt.


DETAILS
- schönes 1.028 m² großes Grundstück
- Haus in Massivbauweise aus 1998
- von Beginn an barrierefrei errichtet mit breiten Türen,
breiter Treppe, Treppenlift mit Fernbedienung,
geräumigem Badezimmer mit angepassten Details für
einen Rollstuhl
- geräumige Markenküche mit Siemens Geräten
- sehr schöner, heller und großer Wohnraum auf fast
42 m² mit offener Küche (11,5 m²) und angrenzendem
Wintergarten (ca. 15 m²)
- zwei geräumige Zimmer im EG mit 12 und fast 23 m²,
zwei sehr geräumige Zimmer im OG mit ca. 27 und
25 m²
- Klimaanlage im OG
- geräumiges Wannenbad im OG sowie eine Ankleide auf
ca. 12 m²
- elektrische Außenrolllos rundum im EG und OG,
teilweise per App steuerbar
- Solaranlage mit 6,46 kWp aus 2011
- neue Gas Zentral Heizung aus 2020
- 2002 Wintergartenerweiterung, voll beheizt und mit
elektrischem Sonnenschutz
- Design Carport aus Glas/Stahl mit 2,50 m Höhe
- 2. Carport im hinteren Grundstücksbereich aus Holz mit
Schuppen für 2 PKW
- elektrische Toranlage mit Fernbedienung
- Grundstück kaum einsehbar
- schöner angelegter Garten
- 6 Zimmer inkl. Wintergarten
- Kamin
- elektrische Markise/Terrassenüberdachung
- Alarmanlage mit Fenster-Türkontakten
- Fußbodenheizung im EG
- in jeder Etage HWR oder Abstellraum
- Parkettboden im Obergeschoss
- Velux Fenster im Dach, teilweise elektrisch mit elektrischen Außenrollos
- sehr geräumige Dachterrasse auf über 43 m²
- weiterer geräumiger Hobbyraum/Abstellraum auf über 12 m²
- Gartenbrunnen mit Pumpe für die Bewässerung ist vorhanden
- Glasfaser liegt in der Straße an
- ruhige Lage und viele sonnige Ecken runden das Objekt im schönen Caputh
- sofort bezugsfrei!
Wenn Sie sich für dieses attraktive, barrierefreie Einfamilienhaus mit Stil interessieren, freuen wir uns auf Ihre Kontaktaufnahme.
Da wir nur exklusive Einzelbesichtigungen durchführen, bitten wir um eine Terminanfrage, damit wir für Sie planen können.
10405 BERLIN PRENZLAUER BERG, GREIFSWALDER STRASSE
___________________

AB SOFORT
Exklusiv können wir Ihnen diese schöne Loft-Wohnung in ruhiger Lage im Innenhof der Greifswalder Straße anbieten, die einen ganz besonderen Charme besitzt.
2013 wurden die Gebäude kernsaniert und es entstand dieses attraktive Objekt in schöner, zentraler Kiezlage in Prenzlauer Berg.
Die große, lichtdurflutete Loft-Wohnung verfügt auf ca. 129 m² über 3 -3,5 schöne und gut geschnittene Zimmer, zwei Balkone mit S/W-Ausrichtung, zwei Badezimmer mit Wanne und Dusche, eine offen gestaltete Designer Küche sowie einen Abstellraum.
Besonder hervorzuheben sind die ausgewählten Materialien, hochwertigen Armaturen und schönen Details wie die retro Bakelitschalter, die historischen Kappendecken und die eingelassenen Deckenspots.
Die Wohnung ist seit Juli 2023 gut und seriös vermietet ! Die Mieter würden bis Ende 2028 nach Bedarf ausziehen.
DETAILS
Wohnfläche: ca. 129 m²
Nutzfläche: ca. 130 m²
frei ab: 2028
Etage: 2 von 5
Typ: Etagenwohnung
Highlights: Einbauküche, Balkon, Stuck, gehoben, Lift
Preis: 859.000 EURO
Provision für Käufer: 3,5 % nach Notar inkl. MwSt fällig nach Notar durch Rechnungstellung von WS Immoconsult Wicke
Infos gemäß GEG - § 87
Baujahr: 1913
Letzte Modernisierung: 2013
Objektzustand: gehobrn
Qualität der Ausstattung: gehoben
Heizungsart: Zentralheizung
Wesentliche Energieträger: Gas
Energieausweis: liegt vor
Energieausweistyp: Verbrauchsausweis
Endenergiebedarf: 96,07 kWh/(m²*a)
Baujahr laut Energieausweis: 1913
LAGE
Zentral und ruhig mitten in Berlin-Prenzlauer Berg gelegen. Die Wohnung befindet sich in ruhiger Lage im Innenhof des Seitenflügels der Greifswalder Str. in Berlin Prenzlauer Berg.
Direkt zwischen Winsviertel und Bötzowviertel in beliebter, bunter Kiezlage gelegen, bietet die direkte Nachbarschaft alle Dinge des täglichen Bedarfs direkt vor der Haustür.
In wenigen Minuten erreicht man fußläufig mehrere Supermärkte, Drogerien, Banken, Apotheken und Arztpraxen, ebenso aber auch zahlreiche Restaurants, Cafés, kleine Boutiquen und Gallerien, eine Bibliothek, Schulen und weitläufige Parks, die zum Bummeln und Verweilen einladen und über das Jahr hinweg vielfältige Events anbieten.
Auch die Anbindung an den öffentlichen Nahverkehr ist aufgrund der zentralen Lage problemlos gegeben.
So fahren direkt vor der Haustür die Tram-Linien M4 und M5, am S-Bahnhof Greifswalder Straße pendeln die Bahnen S8, S9, S41, S42 S85 und bringen einen zuverlässig in die benachbarten Bezirke, zum Hauptbahnhof oder zum neuen Flughafen BER.

AUSSTATTUNG
- Wohnung mit ca. 129 m² Wfl.
- 3 - 3,5 Zimmer
- 2 schöne Balkone, gute Größe, Süd/West mit
schöner Aussicht
- ruhig im Hinterhaus/Innenhof
- große isolierverglaste Fenster, größtenteils
bodentief in Industrieoptik
- teilweise hohe, seltene Kappendecken
- Parkettboden in allen Räumen
- 2 helle Badezimmmer mit Wanne und/oder Dusche
- zwei große, lichtdurchflutete Schlafzimmer
- Deckenspots in Bad und Flur
- Abstellraum/Garderobe in der Wohnung
- offen, Design-Küche mit allen Geräten
- Geschirrspüler inklusive
- Glasschutz an den Wänden der Küche
- zwei Eingänge nutzbar
- schöne Details in der Wohnung, wie zB. alte "Industrie-Bakelitschalter"
- Fahrstuhl direkt auf die Etage
- Kellerraum
- Gegensprechanlage
- Türen mit Sicherheitsbeschlag + Spion
- Innenhof nur für Mieter/Besucher zugängig
- gepflegt angelegte Außenanlagen
- Fahrradständer im Innenhof
- toller Kiez im Umfeld
- alles vor der Tür
- zentrale Lage
- gute Hausgemeinschaft
- kein Instandhaltungstau
- Die Wohnung ist seit Juli 2023 gut vermietet.
- Nach Wahl 2028 bezugsfrei!
Wenn Sie sich für diese schöne Immobilie im Herzen Prenzlauer Bergs interessieren, freuen wir uns auf Ihre Kontaktaufnahme.
Da wir nur exklusive Einzelbesichtigungen durchführen, bitten wir um eine Terminanfrage, damit wir für Sie planen können.
15745 KÖNIGS WUSTERHAUSEN/WILDAU, PUSCHKINALLEE
___________________

BEZUGSBEREIT
Diese besondere Immobilie überzeugt durch ein individuelles Design und viel Raum zur persönlichen Gestaltung.
Egal ob Generationenhaus, Teilvermietung oder große Familie, hier sind Sie richtig. Das Objekt verfügt über zwei Einheiten, die aber auch problemlos miteinander verbunden werden können.
Das Haus wurde in der Basis 1996 neu errichtet und seitdem stetig auf Stand gehalten.
Es steht auf einem 801 m² großen Grundstück und verfügt über diverse Terrassen und Plätze zum Verweilen
rund um das Haus sowie einen pflegeleichten Garten mit altem Baumbestand.
Die beiden Wohneinheiten haben jeweils eigene Eingänge auf verschiedenen Seiten des Objekts.
So kann die großzügig geschnittene Immobilie optimal als Generationenhaus genutzt oder eine Einheit vermietet werden. Problemlos ließen sich die Einheiten wieder im Inneren des Objekts verbinden zu einem kompletten, großen Wohnhaus.
In beiden Einheiten sind große Badezimmer und ein Gästebad vorhanden. Jeweils ein Kamin pro Wohnetage sorgt für die besondere Atmosphäre und gemütliche Stunden.
Beheizt wird das Objekt über eine Gas-Zentralheizung.
Als besonderes Highlight hat das Haus einen geräumigen, ausgebauten und beheizbaren Keller, der sowohl zwei weitere gut nutzbare Zimmer enthält wie auch einen Wellnessbereich mit einem funktionsfähigen Pool von 6x3 Metern und eine Sauna.
Beide Einheiten haben einen besonderen Wohnraum mit einem großen, halbrunden Erker und vielen Fenstern, die die attraktive Front des Hauses prägen.
DETAILS
Wohnfläche ca.: 225 m²
Grundstücksfläche ca.: 801 m²
Nutzfläche ca.: 408,7 m²
Typ: Freistehendes Einfamilienhaus
Etagen: 3
Zimmer: 11
Anzahl Garagen: 2
Bezugsfrei: ab sofort
Kaufpreis: 799.000 Euro
Infos gemäß GEG - § 87
Baujahr: 1996
Objektzustand: Gepflegt
Letzte Modernisierung/Sanierung: 2010
Heizungsart: Gas-Heizung
Wesentlicher Energieträger: Gas
Energieausweis: liegt zur Besichtigung vor
Provision für Käufer: 3,5 % nach Notar inkl. MwSt
LAGE
Die Puschkinallee befindet sich in einem ruhigen, grünen Wohngebiet von Wildau, das durch seine familienfreundliche Atmosphäre besticht. Die Nähe zu Wäldern, Wiesen und der Dahme ermöglicht erholsame Spaziergänge und Radtouren in der Natur. Gleichzeitig profitieren Bewohner von der Nähe zur Berliner Stadtgrenze und einer ausgezeichneten Verkehrsanbindung.
Für den täglichen Bedarf stehen zahlreiche Einkaufsmöglichkeiten zur Verfügung. Zu Fuß erreichen Sie mehrere Restaurants, zwei Bäckereien und Supermärkte. Außerdem gibt es ein paar Grün- und Parkanlagen, eine Bar, eine Bibliothek, einen Physiotherapeuten und eine Postannahmestelle in der direkten Nachbarschaft. Das nahegelegene A10 Center zählt zu den größten Einkaufszentren Deutschlands und bietet neben einer Vielzahl von Geschäften auch ein Multiplex-Kino und ein Bowling-Center.
Wildau verfügt über ein umfassendes Bildungs- und Betreuungsangebot für Kinder aller Altersstufen. Fünf Kitas stehen zur Verfügung, die Grundschule Wildau und die Ludwig-Witthöft-Oberschule sowie das Privatgymnasium Villa Elisabeth und die Technische Hochschule Wildau.
Der S-Bahnhof Wildau ist bequem zu Fuß erreichbar und wird von den Linien S46 und S8 bedient. Die S46 verbindet Wildau mit dem Berliner Südring, während die S8 während der Hauptverkehrszeiten bis Wildau verlängert wurde. Zusätzlich verkehren mehrere Buslinien (735, 736, 737, 738, N36) in Wildau und verbinden die Stadt mit Königs Wusterhausen, dem Flughafen BER und umliegenden Gemeinden. Die Autobahn A10 (Berliner Ring) ist ebenfalls schnell erreichbar, was eine zügige Anbindung an das Berliner Umland ermöglicht.



AUSSTATTUNG
Objektdetails im Überblick:
- 1996 neu in Massivbauweise errichtet
- besonderes, individuelles Design
- Gas-Zentralheizung
- zwei abgeschlossene Wohneinheiten, die
bei Bedarf einfach wieder verbunden
werden können
- EG-Einheit verfügt über 131 m²
- OG-Einheit verfügt über 95 m²
- gute Raumgestaltung auf über 11
Zimmern im EG, OG und UG +
Nebenräumen und Poolraum
- Wellnessbereich mit Pool (6x3 m) im
Keller
- beide Einzelheiten mit großen
Badezimmern mit Wanne/Dusche und
Gäste-WCs
- Kamin in beiden Wohnungen
- Badezimmer im EG ca. 2019 erneuert
- ebenfalls 2019 Erneuerung der
Wasserleitungen
- Böden teils Parkett, Fliesen, Vinyl im Mix
- Isolierfenster Holz
- zusätzlich in jeder Etage Nebenräume/
Abstellräume/Waschküche
- jede Einheit hat eine eigene Terrasse
- beide Küchen sind offen gestaltet
- jeweils ein Carport pro Einheit
- separate Grundstückszugänge
vorhanden
- geräumiger Geräteschuppen auf dem
Grundstück
- sofort bezugsfrei
- ruhige und schöne Lage in Wildau
Wenn Sie sich für diese schöne Immobilie im Herzen Moabits interessieren, freuen wir uns auf Ihre Kontaktaufnahme.
Da wir nur exklusive Einzelbesichtigungen durchführen, bitten wir um eine Terminanfrage, damit wir für Sie planen können.
10589 BERLIN-MOABIT, NORDHAUSER STRASSE
_____________________________

- VERKAUFT -
Wir freuen uns, Ihnen hier exklusiv dieses 2021 sanierte 2-Raum-Apartment in einem stilvollen Objekt aus der Gründerzeit mit schönen Stuckelementen und netten Details in ruhiger Lage von Berlin-Charlottenburg vorstellen zu können. Es wird zum 15.04.2025 frei.
Die ca. 60 m² Wohnung liegt im 3. Stock des insgesamt sehr schönen Hauses in zentraler und dennoch ruhiger Lage im gemütlichen Mierendorffplatzkiez.
Die Einheit wurde liebevoll 2021 saniert und hat neue Elektrik, ein neues Bad und eine Küche erhalten, wie auch neue Böden und weitere Details.
Das Treppenhaus wurde 2024 behutsam im alten Stil renoviert.
Leider ist kein WBS oder Hund/Katze in dem Objekt möglich, wir bitten um Verständis.
Zimmer: 2
Wohnfläche: ca. 60 m²
frei ab: 15.04.2025
Etage: 3 von 5
Typ: Etagenwohnung
Highlights: Einbauküche, Balkon, Stuck, gehoben
Preis: Auf Anfrage
Provision für Käufer: 7,14 % inkl. Mwst fällig nach Notar durch Rechnungstellung von WS Immoconsult Wicke
Infos gemäß GEG - § 87
Baujahr: 1913
Letzte Modernisierung: 2021
Objektzustand: gepflegt
Qualität der Ausstattung: gehoben
Heizungsart: Zentralheizung
Wesentliche Energieträger: Gas
Energieausweis: liegt vor
Energieausweistyp: Verbrauchsausweis
Endenergiebedarf: 115 kWh/(m²*a)
Baujahr laut Energieausweis: 1913
Lage
Das Objekt verfügt über eine tolle, zentrale Lage und ist doch ruhig gelegen. Die Anbindung an die öffentlichen Verkehrsmittel ist sehr gut, so liegen der U-Bhf Mierendorffplatz (U7) und diverse Bushaltestellen (M27) nur wenige Gehminuten entfernt. Alle Dinge des täglichen Bedarfs (zB. Netto, Lidl, Aldi, Restaurants, Cafés, Arztpraxen und kleine Parkanlagen) liegen im direkten Umfeld.
Ebenfalls schnell erreicht sind Schloss Charlottenburg und das Spreeufer für einen Spaziergang.
Die Auffahrt zur Stadtautobahn liegt nur 5 Fahrminuten entfernt, über sie erlangt man den Kurfürstendamm oder die Berliner Innenstadt in kürzester Zeit.

Ausstattung
Die hübsche 2-Zimmer-Wohnung verfügt über einen hellen Wohnraum mit Süd-Balkon, Isolierfenster und hohe Altbau-Decken (3m) mit überarbeitetem Stuck und gespachtelten Wänden.
In Flur, Bad und Küche wurden moderne Downlights installiert. Die komplette Einbauküche beinhaltet Edelstahlgeräte, Ceranfeld und ein Kühl-Gefrierschrank, eine Glas-Edelstahl-Abzugshaube sowie Isolierfenster für Lüftung und Licht zum ruhigen Innenhof.
Das Schlafzimmer hat ebenfalls Isolier-Fenster und ist zum ruhigen Innenhof hin gelegen.
Das elegante Bad mit Downlights, neuem Fenster und Design-Waschtisch, besitzt ein modernes Hänge-WC, einen Handtuchheizkörper und eine Dusche.
Die Eingangstür wurde überarbeitet und verfügt nun über einen Türspion, eine Zusatzverriegelung und eine Gegensprechanlage.
Schöne, hochwertige Details wie eine elegante Echtsteinwand im Flur und überarbeitete Altbautüren und Beschläge sowie der Balkon zur Süd- Seite zeichnen diese Wohnung aus.
Im Flur, Schlafzimmer und Wohnraum wurde neuer Boden in Fischgrät-Optik verlegt.
Wenn Sie sich für diese schöne Immobilie im Herzen Moabits interessieren, freuen wir uns auf Ihre Kontaktaufnahme.
Da wir nur exklusive Einzelbesichtigungen durchführen, bitten wir um eine Terminanfrage, damit wir für Sie planen können.
14532 KLEINMACHNOW, KARL-MARX-STRASSE
_____________________________

- Neu und exklusiv bei uns -
Vielen Dank für Ihr Interesse an diesem stilvollen, gepflegten und stets auf Stand gehaltenen Einfamilienhaus in Kleinmachnow in ruhiger, schöner Lage.
Das Haus aus den 1930er-Jahren wurde umfangreich in den letzten Jahren saniert, renoviert und erweitert und steht nun flexibel nach Absprache zum Einzug bereit -
einfach einziehen und wohlfühlen mit der ganzen Familie!
Die Immobilie verfügt bereits über eine energieeffiziente Fassadendämmung, eine neue Brennwerttherme, moderne Isolierfenster und zeitgemäße Elektrik, einen Glasfaseranschluss, eine Netzwerkverkabelung in den Zimmern sowie einer Sat-Anlage für alle Räume.
Der Wohnbereich erstreckt sich über 7 helle Räume - vom Erdgeschoss, der 1. Etage bis zum ausgebauten Dachgeschoss - auf insgesamt 145 m², inklusive zwei Bädern und einem schönen Wintergarten sowie einer sonnigen Terrasse hinaus zum großen Garten.
Durch das ausgebaute Dachgeschoss, einen geräumigen Keller sowie einen beheizten Hobbyraum an der Garage, gibt es genug Raum für die Familie oder Ihre Hobbies.
Ein ca. 856 m² großes, gepflegtes Grundstück mit sonniger Süd-West-Ausrichtung, etwas altem Baumbestand, Pool und einem Gartenhäuschen runden das Angebot ab. Die Terasse und der Garten sind schön uneinsehbar und sorgen für Privatsphäre.
Das schöne Haus ist flexibel verfügbar, gut geschnitten und bietet viel Potenzial und Platz zur freien Entfaltung!
Wohnfläche ca.: 145 m²
Grundstücksfläche ca.: 856 m²
Nutzfläche ca.: 253 m²
Typ: Freistehendes Einfamilienhaus
Etagen: 3
Zimmer: 7
Anzahl Garagen: 2
Bezugsfrei: nach Absprache
Kaufpreis: 1.049.000 Euro
Infos gemäß GEG - § 87
Baujahr: 1936
Objektzustand: Gepflegt, normale Qualität
Letzte Modernisierung/Sanierung: 2018
Heizungsart: Gas-Heizung
Wesentlicher Energieträger: Gas
Energieausweis: liegt vor
Energieausweistyp: Verbrauchssausweis
Energieverbrauchskennwert: 110,6 kWh/(m²*a)
Energieeffizienzklasse: D
Provision für Käufer: 3,5 % nach Notar inkl. MwSt.
Mit dem Verkäufer ist die Vergütung in gleicher Höhe vereinbart.
Lage:
Dieses schöne Haus liegt im idyllischen Kleinmachnow im Landkreis Potsdam-Mittelmark in gesuchter, beliebter und ruhiger Lage, umgeben von Einfamilienhäusern und Stadtvillen mit viel Grün und breiten, ruhigen Einliegerstraßen an der Grenze zu Berlin-Zehlendorf/ Stahnsdorf.
Neben einer großen Zahl an Spielplätzen für Kinder gibt es in Umfeld auch Bolzplätze und eine Skateranlage für Kinder und Jugendliche.
Doch nicht nur die Jüngsten können sich austoben. Für das generationsübergreifende sportliche Rundumsorglospaket sorgen auch Sportvereine wie beispielsweise der Ruderclub Kleinmachnow-Stahnsdorf-Teltow e. V. sowie Fitnesseinrichtungen wie das Kleinmachnower Sportforum. Im Sommer lädt das beliebte Freibad Kiebitzberge zum Abkühlen, Planschen, Sonnenbaden oder Bahnenziehen ein. Die Sauna im Freibad bietet Ihnen einen Ort der Ruhe und Entspannung. Mit dem Fahrrad erreicht man schnell den Mauerradweg, den Teltowkanal oder den Großen Wannsee.
Die Nahversorgung mit Ärzten, Schulen, Kitas oder Einkaufs- und Freizeitmöglichkeiten ist ideal und auch Restaurants oder Cafes sind fußläufig bequem erreichbar. Mehrere Bushaltestellen (622) befinden sich in nur wenigen Gehminuten Entfernung direkt in der Karl-Marx-Straße, die nächstgelegenen Bahnhöfe ist der S-Bhf Zehlendorf (S1) sowie der S-Bhf Berlin-Wannsee (S1, S7, Regio, Odeg), die man mit dem Wagen in 10 Minuten erreicht. Über die A115 erreichen Sie in 30 Minuten Berlin-Mitte, in 15 Minuten Potsdam oder in 30 Minuten den BER Flughafen in Schönefeld.




Diese schöne Immobilie besitzt folgende Details und Eigenschaften im Überblick:
- Baujahr 1936 in Massivbauweise
- Ende der 90er umfangreich saniert von
Dach, Elektrik, Dämmung Fassade,
Dachrinnen, Fenster, Keller und die
Hausanschlüsse Garagenanbau bis zur
Raumaufteilung
- 2018 wurde eine neu Gas Brennwert
Therme mit 28 kw von Vaillant verbaut
und alle Heizkörper erneuert sowie ein
160 Liter Wärmespeicher verbaut
- geräumige, beheizte Garage
- 7 gut nutzbare Räume inkl. Wintergarten
und Spitzboden
- 2020 wurde im gesamten EG neuer
Designboden verlegt - massives Holz
- Eingangstür mit Mehrfachverriegelung
und Sicherheitsschloss inklusive
Notöffnungsfunktion
- elektrische, gedämmte Außenrollos aus
2021 rundum
- Gästebad im EG mit Dusche, Fenster und
Handtuchheizkörper
- 23,25 m² großer Wintergarten aus
2018 mit breiten
Schiebetüren zur sonnigen Süd-West-
Terrasse als erweitertes Wohnzimmer
- große, elektrische Sonnenmarkise für die
Terrasse
- moderne Einbauküche mit Geräten aus
2018 inklusive Design Flachhaube,
Induktionskochfeld, Kühl-/
Gefrierkombination und Backofen
- 3 Zimmer in der 1. Etage zur freien
Aufteilung - eine Wand könnte
problemlos raugenommen werden, die
Anschlüsse für eine Küche sind bereits
vorhanden, falls eine Einliegerwohnung
geschaffen werden soll
- Tageslichtbad mit Velux Dachfenster,
Wanne und Dusche in der 1. Etage mit
Fußbodenheizung
- Spitzboden ausgebaut mit
Dachflächenfenster für gute Beleuchtung,
als Hobbyraum nutzbar inklusive
modernen Downlights in den Decken
- Der Keller wurde vor einigen
Jahren von außen neu abgedichtet, ist
bereits saniert und enthält
die Haustechnik und eine geräumige
Waschküche
- Das Haus verfügt über einen
Glasfaseranschluss sowie eine
Satellitenanlage wie auch eine moderne
Netzwerkverkabelung mit Patchfeld und
Switch im Keller. Außerdem ist das Haus
mit einem Kabelanschluss versorgt.
- Im Haus befinden sich noch unter dem
aktuellen Bodenbelag im EG die
originalen Dielenböden, falls
Naturholzboden gewünscht ist.
- Bei Bedarf bietet das EG auch die alten
höheren Decken aus dem Baujahr,
derzeit sind sie auf 2.60 m abgehängt.
Garten:
- schöner, großer aber pflegeleichter
Garten mit etwas altem Baum- und
Pflanzenbestand
- 6x3 m Pool mit 1,20 m Tiefe aus 2018
mit Natursteinrand, Solarheizung und
Sandfilteranlage
- 2 m³ Liter Regenwasserzisterne mit
Pumpe
- Gardena Bewässerungssystem
- Mähroboter für den Rasen
- neues Gartenhaus aus 2021 für
Pooltechnik und Geräte
- neue Zaunanlage aus 2015 im
Vordergarten mit Toreinfahrt
Weiterhin verfügt das Haus über eine geräumige massive, beheizte Garage die einen weiteren, beheizten Hobbyraum mit Zugang zum Garten angebaut hat.
Ein schönes Objekt bei dem die Substanz stimmt und die Technik auf Stand ist.
Wir freuen uns auf Ihre Anfrage und stehen für eine exklusive Einzelbesichtigung am Abend oder Wochenende gerne zur Verfügung.
28213 BREMEN, NEU-SCHWACHHAUSEN
____________________

- VERKAUFT -
Wir freuen uns, Ihnen hier exklusiv diese elegante und großzügig geschnittene Stadtvilla auf einem attraktiven, fast 550 m² großen, eingewachsenen Grundstück im begehrten Bremer Stadtteil Vorstadt/ Schwachhausen vorstellen zu dürfen.
Das wunderschöne, freistehende Gründerzeit-Objekt aus den 1930er Jahren erstreckt sich auf großzügigen ca. 388 m² Nutzflächen und bietet mit seinen insgesamt 7 Zimmern und einem gut durchdachten Grundriss viel Platz zur freien Entfaltung mit Stil.
Das Objekt wurde stetig und umfangreich in den Jahren 2016-2021 renoviert und mit viel Liebe zum Detail
restaurierte und erhielt man die charmanten Altbauelemente. Sie ergeben jetzt im Mix mit modernstem Komfort und edlen Materialien ein stilvolles Gesamtbild.
Über den beeindruckend eleganten Eingangsbereich mit einer originalen Holztür aus dem Baujahr 1930 inklusive Bleiglas-Elementen und Messingdetails betritt man durch den Windfang den geräumigen Eingangsbereich der Villa.
Im repräsentativen Erdgeschoss befindet sich die offene und voll ausgestattete Küche mit Speisekammer sowie moderner Lichtdecke/LED, die durch einen lichtdurchfluteten
Wintergarten mit Gartenzugang mit dem Wohn- als auch dem Esszimmer verbunden ist.
Beide Räume besitzen noch das schöne, aufgearbeitete Fischgrätparkett aus dem Baujahr, sind mit einer Holzschiebetür voneinander separierbar und ein großer Eckkamin mit Granitelementen rundet schlussendlich diese Wohnbereiche mit gehobenem Flair und Gemütlichkeit ab. Neben der praktischen Garderobe befindet sich ein Gäste-WC für Ihren Besuch.
Über die leicht geschwungene Echtholztreppe erreicht man die oberen Etagen.
Im ersten Obergeschoss erwarten Sie drei geräumige Zimmer, eines davon mit Zugang zur zum Garten ausgerichteten Dachterrasse, zur freien Aufteilung mit
geschliffenen Echtholzparkettböden.
Neben einem hellen Tageslichtbad mit Fenster, großer Eck-Dusche und Eckwanne sowie zwei Design-Waschbecken und eleganter Marmorfliese hat die Etage zusätzlich ein separates WC mit Fenster.
Das zweite Obergeschoss erstreckt sich auf zwei gemütlichen Dachgeschoss-Zimmern mit Schrägen und großen Dachfenstern sowie einem modernen, 2018 ausgebauten Duschbad mit WC.
Der weitläufige Vollkeller bietet mit seinen insgesamt sechs Kellerräumen viel Platz für Stauraum, Ihr Hobby, eine Waschküche, eine eventuelle Werkstatt oder vielfältige andere Nutzungsoptionen. Des weiteren ist er auch komfortabel vom Garten aus zugängig.
Die gemütliche Stadtvilla befindet sich in einem sehr gepflegten Zustand und wurde immer auf Stand gehalten.
Der uneinsehbare, ansprechend angelegte und Richtung Osten ausgerichtete Garten rundet das schöne Ensemble ab.
Einfach einziehen und wohlfühlen! Ruhig im Grünen und dennoch in zentraler Bestlage von Bremen! Das Objekt ist bereits leer und kurzfristig bezugsfertig.
Nutzfläche: 387,80 m²
Wohnfläche: 221,4 m²
Grundstück: 546,5 m²
Zimmer: 7
Kaufpreis: -VERKAUFT-
Typ: Villa
Bezugsfrei: sofort
Etage: 3
Zimmer: 7
Garagen/Stellplätze: 2-4
Baujahr: 1930
Letzte Modernisierung/Sanierung: 2021
Objektzustand: Gepflegt
Ausstattung: Luxus
Heizungsart: Zentralheizung
Wesentlicher Energieträger: Gas
Energieausweis: liegt vor
Energieausweistyp: Bedarfsausweis
Energiebedarf: 170,7 kWh/(m²*a)
Energieeffizienzklasse: F
Baujahr laut Energieausweis: 2020
Lage:
Ruhig und dennoch zentral in absoluter Bestlage von Bremen!
Die hier vorgestellte Immobilie liegt grün und hochherrschaftlich eingebettet inmitten anderer Stadtvillen und Altbremer Häuser aus der Zeit der Jahrhundertwende sowie gepflegten Parkanlagen und einer guten Infrastruktur im beliebten Schwachhausen.
Der grüne Stadtteil ist bekannt für seinen schönen Bürgerpark mit dem angrenzenden Stadtwald, seine reiz- und stilvollen Wohnquartiere, immer wieder ergänzt durch moderne Neubauten.
Alle Dinge des täglichen Bedarfs befinden sich im direkten, bequemen Umfeld und sind gut zu Fuß, per Fahrrad oder per Auto erreichbar.
Kleine Bistros, Cafés, Restaurants, eine Apotheke, Friseure, Banken, diverse Schulen (Waldorfschule, Grundschule, Gymnasium) und Kindergärten finden sich genau so im näheren Umfeld wie die unterschiedlichsten Einkaufsmöglichkeiten (REWE, Nar Supermarkt, Edeka, ALECO BioMarkt).
Auch an die öffentlichen Verkehrsmittel ist man hier problemlos angebunden.
Nur eine Gehminute entfernt liegt die Tramhaltestelle Kirchbachstraße (1, 1E, 1S, 4, 4S, N1, N4) sowie eine Bushaltestelle (22, N9).
Den Bremer Hauptbahnhof und die Innenstadt erreicht man in etwa 10 Minuten, den Flughafen in etwa 22 Minuten.




Die hier vorgestellte, mit viel Liebe zum Detail ausgestattete Stadtvilla verfügt über die folgenden Details im Überblick:
- 1930 erbaute, klassische Gründerzeit-Stadtvilla im
gediegenen Schwachhausen, ruhig und zentral
gelegen
- 222 m² Wohnfläche, verteilt auf 7 Zimmer, eine Küche,
Wintergarten, 2 WCs, 2 Duschbäder sowie anteilig
Terrasse und Dachterrasse
- insgesamt ca. 388 m²
- ca. 550 m² Grundstück
------------------
Erdgeschoss
------------------
- imposante Echtholzeingangstür mit Bleiglas- und
Messingelementen
- Windfang mit LED-Deckenspots
- geräumiges, stilvolles Entrée mit Fischgrätparkett,
Deckenspots und geschwungener Echtholztreppe sowie
Zugang zum Wohn-/Essbereich, dem Gäste-WC und der
Küche
- großer, heller Wohn-/Essbereich mit Fischgrätparkett
auf insgesamt ca. 54,07 m², separierbar durch
eine elegante Holzschiebetür mit Glaselementen
- stilvoller, funktionsfähiger Eckkamin mit Granit
- teilweise historische Stuckdetails an den Decken
- Deckenhöhe von ca. 3 Metern
- lichtdurchfluteter Wintergarten aus 2016 als Übergang
zur offenen Küche mit Terrassen- und Gartenzugang
- gepflegte Holzterrasse aus 2016 mit schmiedeeisernem
Geländer auf ca. 9 m² 'gen Osten ausgerichtet
- geräumige, offene Küche mit moderner Lichtdecke, viel
Stauraum, Ceranfeld, AEG Backofen, Geschirrspüler,
integrierter indirekter Beleuchtung, großem Side-by-
side Samsung Kühl-/Gefrierschrank mit
Eiswürfelspender
- praktische Speisekammer
- dezent gefliestes, helles Gäste-WC mit Fenstern, LED-
Deckenspots und Waschbecken
- heller, breiter Treppenaufgang
----------------------
1. Obergeschoss
----------------------
- abgeschliffenes Echtholzparkett in allen Räumen
- historische Kastentüren mit Messinggriffen
- drei geräumige Zimmer auf 22,45 m²inklusive
Dachterrasse, 21,97 m² und 14,28 m²
- zum Garten hin ausgerichtete Terrasse mit Holzdielen
auf ca. 5,11 m²
- großes Badezimmer mit eleganten Marmor-Fliesen,
LED-Deckenspots, Eckdusche, Eckbadewanne,
Handtuchheizkörper, zwei Design-Waschtischen mit
Ablageflächen und einem großen Fenster
- separates Gäste-WC mit Fenster und Marmor-Fliesen
-----------------------
2. Obergeschoss
-----------------------
- zwei schöne Dachgeschosszimmer, Sichtbalken, großen
Velux Dachfenstern auf 18,11 m² mit bis zum
Dachfirst geöffneter Zimmerdecke und 16,58 m²
- modern gefliestes Tageslicht-Bad aus 2018 mit großer,
ebenerdiger Glasdusche mit Regenschauerduschkopf,
Handtuchheizkörper, WC, Waschbecken mit
stauraumgebendem Unterschrank und LED-
Deckenspots
- für die Nutzung als Einliegerwohnung umgebaut inkl.
Küchenanschlüssen (Wasser/Abwasser)
---------------------
Kellergeschoss
---------------------
- ca. 97,44 m² Kellerfläche, aufgeteilt auf aktuell 6 Räume
inklusive Waschküche und Heizungskeller
- neue Brennwerttherme aus 2020 für 15.000 Euro
- Zugang zum Keller auch über den Garten
für mehr Komfort
----------------
Grundstück
----------------
- schönes, uneinsehbares Grundstück mit altem Baumbestand und pflegeleichter Bepflanzung, 'gen Osten
ausgerichtet
- elektrisches Zufahrtstor zum Grundstück mit Fernbedienung und Code
- Doppelgarage Neu 2008 mit elektrischem Tor mit Fernbedienung und Code für 2 PKW + Motorräder/Roller/
Fahrräder
- breite Zufahrt mit zusätzlichem Platz für 2 PKW auf dem Grundstück
-----------
Technik/ Sonstiges
-----------
- Gegensprechanlage
- Alarmanlage mit Tableau und 2017 mit App-Aufschaltung erweitert
- Strangsanierung bereits 2002 komplett durchgeführt
- moderne Cat7-Netzwerkverabelung in allen Räumen für 15.000,- Euro 2020
- Alarmanlage mit App Steuerung, erweitert 2017
- Fassadenrenovierung zur Wetterseite und Front mit Gewebe u. Lotusbeschichtung/Versiegelung für ca.
15.000,- Euro
- sehr gepflegt - nur noch einziehen und wohlfühlen!!
Wir freuen uns auf Ihre Anfrage und stehen gern für eine exklusive Einzelbesichtigung zur Verfügung.
Kontaktformular
Mit dem Absenden erklären Sie sich damit einverstanden!















































































































































